
Residencial · Modern
Techo Luz LED
San Borja, Lima
Innovación lumínica
integrada a la estructura.
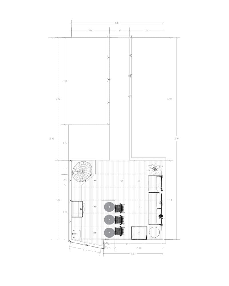
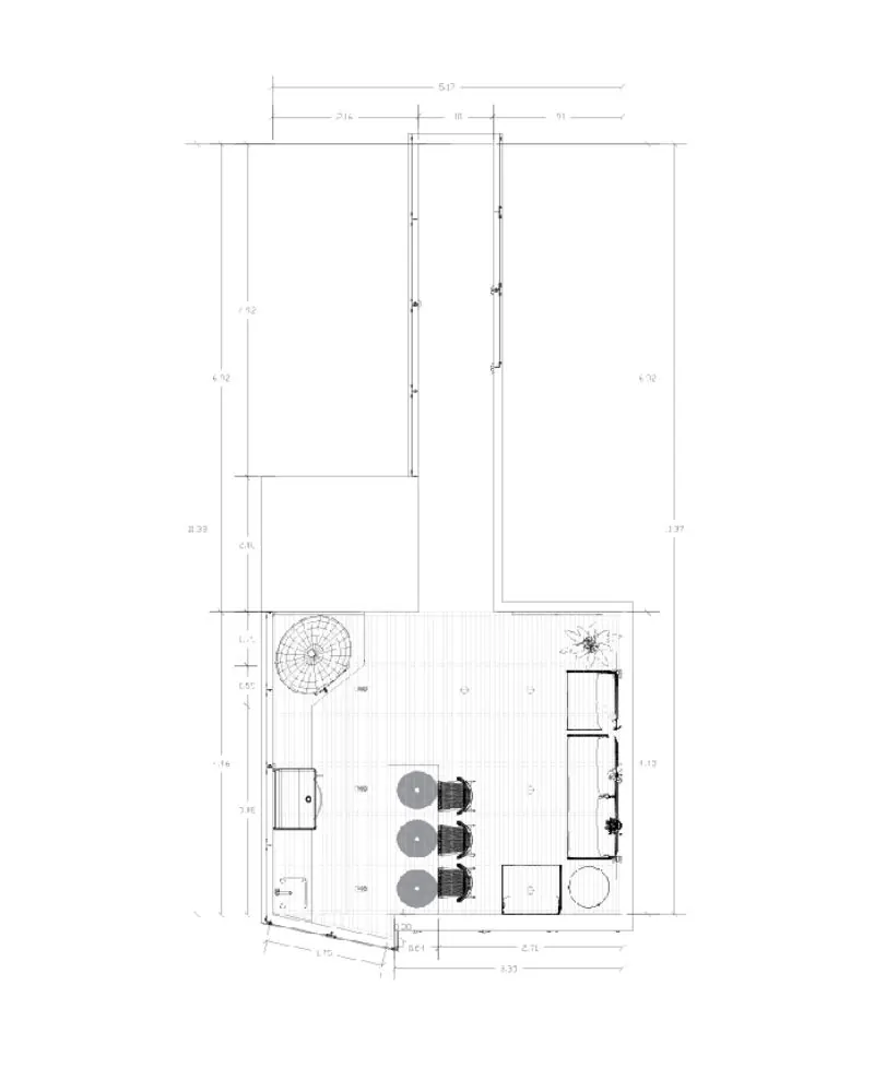
Este proyecto se centró en la fusión de tecnología y calidez. Incorporamos perfiles LED regulables directamente en la viguería Sol y Sombra, permitiendo a los propietarios transitar de una iluminación funcional a una atmósfera íntima con un solo toque.
Detalles Técnicos
Galería Selecta


“La luz define la arquitectura tanto como el material mismo.”


Siguiente Proyecto
Luminaria Cálida


